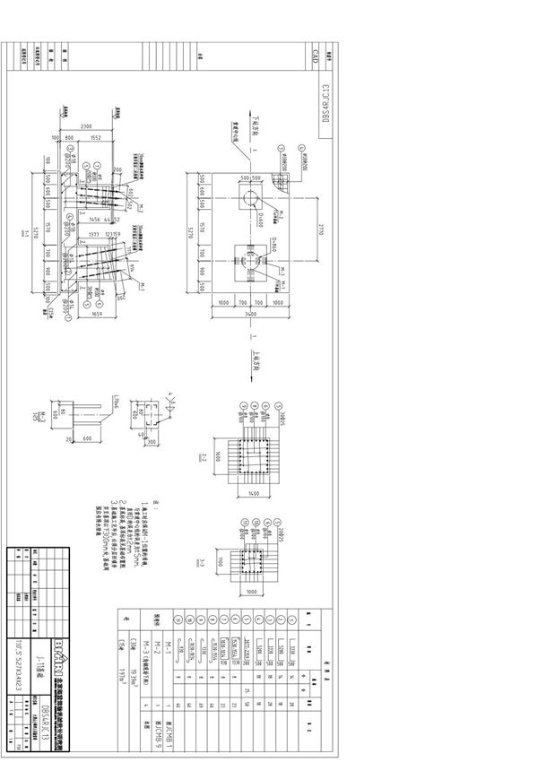
客运索道建设施工图是客运索道工程项目中的核心设计文件,详细展示了索道系统的结构布局、设备安装、基础施工及安全设施等技术要求。施工图通常包括索道线路平面图、纵断面图、支架结构图、驱动站及迂回站布置图、电气控制系统图等专业图纸,为施工方提供精确的工程指导。设计需严格遵循国家《客运架空索道安全规范》(GB12352)及相关行业标准,确保索道运行的安全性、可靠性和经济性。施工图经设计单位签章后,作为施工、监理和验收的依据文件。

客运索道建设施工图是客运索道工程项目中的核心设计文件,详细展示了索道系统的结构布局、设备安装、基础施工及安全设施等技术要求。施工图通常包括索道线路平面图、纵断面图、支架结构图、驱动站及迂回站布置图、电气控制系统图等专业图纸,为施工方提供精确的工程指导。设计需严格遵循国家《客运架空索道安全规范》(GB12352)及相关行业标准,确保索道运行的安全性、可靠性和经济性。施工图经设计单位签章后,作为施工、监理和验收的依据文件。

声明:资源收集自网络无法详细核验或存在错误,仅为个人学习参考使用,如侵犯您的权益,请联系我们处理。
不能下载?报告错误